About
Theatre
Architecture
Installation
Contact
About
Theatre
Architecture
Installation
Contact
Alice Kim
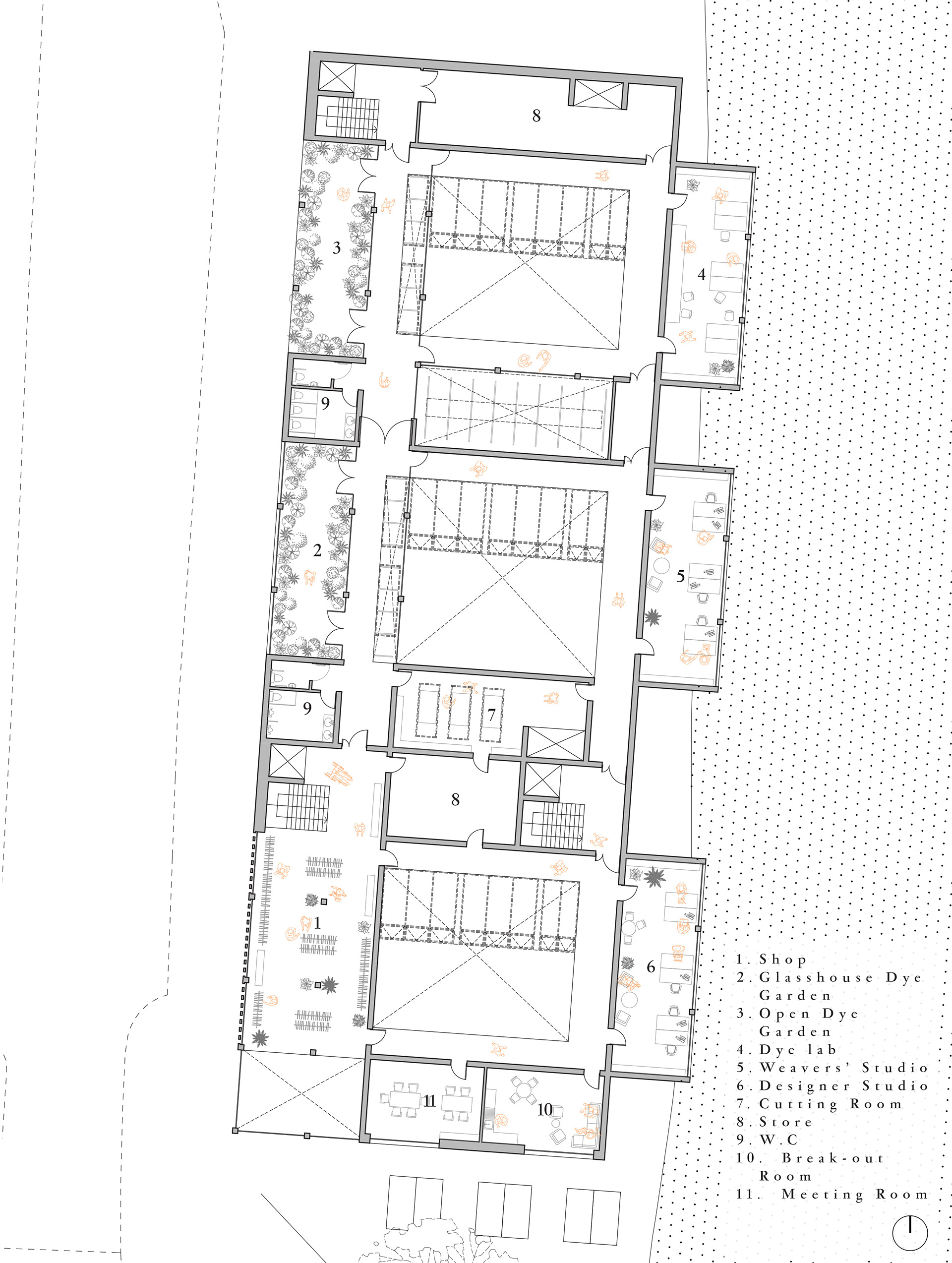
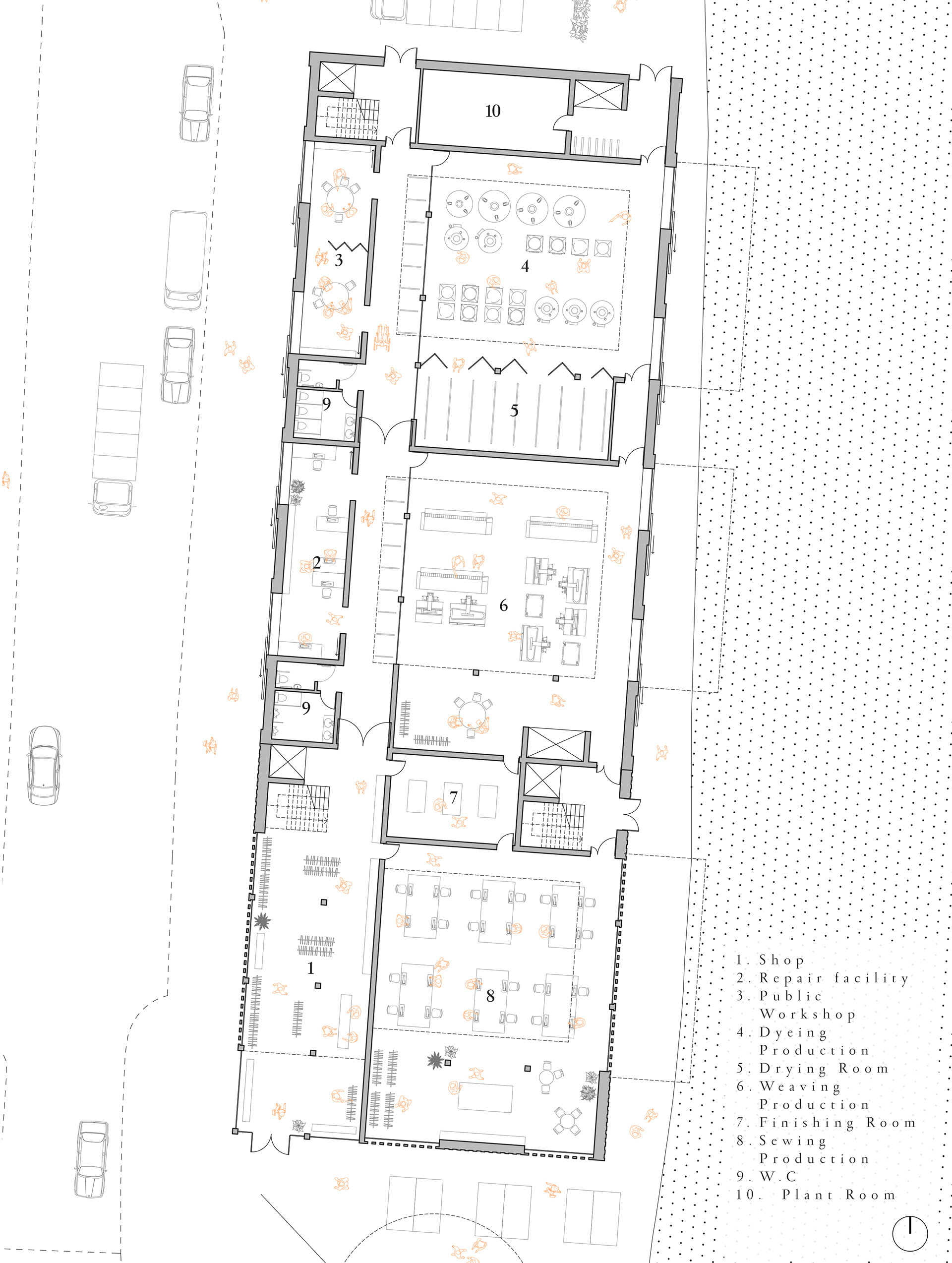
BRISTOL CLOTH MANUFACTORY
Fourth Year Architecture Individual Project
Welsh Back, Bristol
You may also like
FLAGSHIP
VENETIAN FIELDS
MODEL MAKING
↑
Back to Top