About
Theatre
Architecture
Installation
Contact
About
Theatre
Architecture
Installation
Contact
Alice Kim
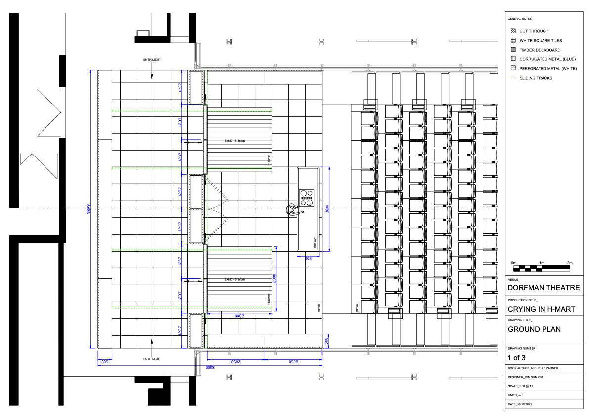
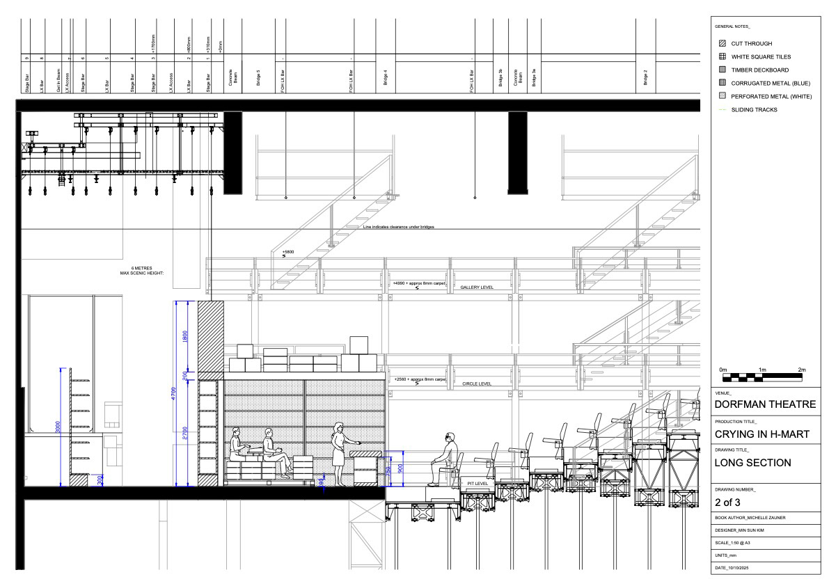
CRYING IN H-MART
Stage adaptation of memoir by M
ichelle Zauner
Director: Alice Kim
Set & Costume Designer: Alice Kim
Speculative design for The Dorfman Theatre, National Theatre
You may also like
FAR AWAY
FUN HOME
DISPLACEMENT: REPLACEMENT
↑
Back to Top